BCI GmbH    Architekt Dipl.-Ing. Ralph Rinow  Simrockstraße 172  22589 Hamburg   Tel. 040 - 870 838 - 15   Fax  - 16

    

 BCI GmbH    Architekt Dipl.-Ing. Ralph Rinow  Simrockstrasse 172   22589 Hamburg
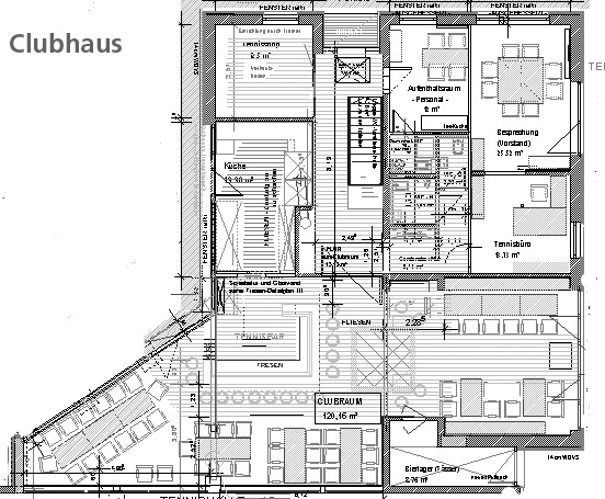
 Komplett - Sanierung und Vergrößerung des Clubhauses mit Tennisbüros, Tennisshop, neue WC-Bereiche, ff.
 Neubau Tennisanlagen der  SVB  -   "Spielvereinigung Blankenese von 1903 e.V."  Eichengrund 25  22589 Hamburg

 
BCI Hamburg T. 040 - 87083815 Fotos Clubhaus Fotos Tennisanlagen
Sonderserie 1    Clubhaus bei Nacht Bilderserie 1     Clubhaus Bilderserie  9    Sportanlagen
Sonderserie 2    Neuste Fotos Bilderserie 2     Clubhaus Bilderserie 10   Sportanlagen
Bilderserie 3     Clubhaus Bilderserie 11   Sportanlagen
Poster aus der Tenniszeitung Bilderserie 4     Clubhaus Bilderserie 12   Sportanlagen
Grundriss Sport- u. Aussenanlagen Bilderserie 5     Clubhaus Bilderserie 13   Sportanlagen
Grundriss Clubhaus Bilderserie 6     Clubhaus Bilderserie 14   Sportanlagen
3D - Vorplanung Bilderserie 7     Clubhaus
Clubhaus vor dem Umbau Bilderserie 8     Clubhaus Projektmanagement und Kosten

Für den Einblick in die Projekte benötigen Sie den Acrobat-Reader