Neubau eines Einfamilienhauses in Blankenese  |   zurück    |    

© 2018 BCI GmbH

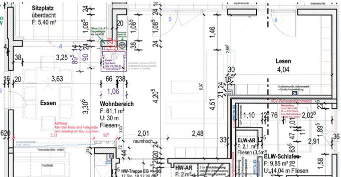
Neubau eines Einfamilienhauses in Blankenese, Fertigstellung 2014
Hier einige Impressionen