Neubau eines Einfamilienhauses in Blankenese  |   zurück    |    

© 2018 BCI GmbH

 

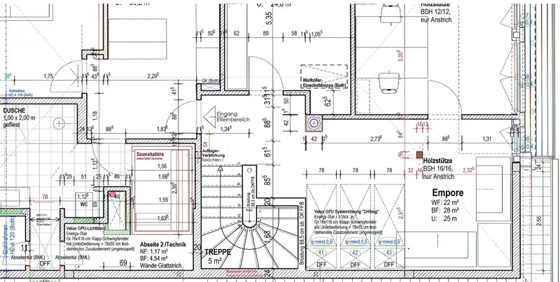
Neubau eines Einfamilienhauses in Blankenese, Fertigstellung 2016