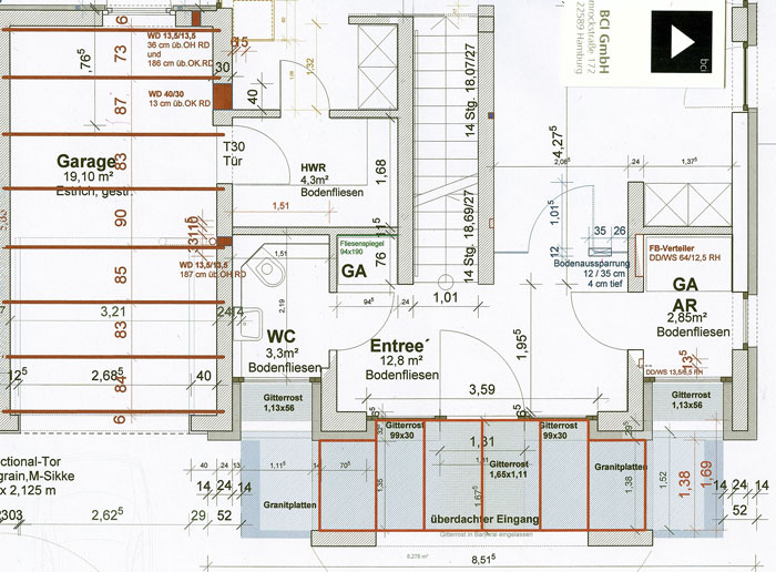
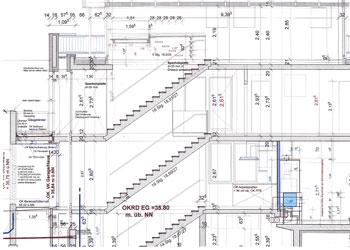
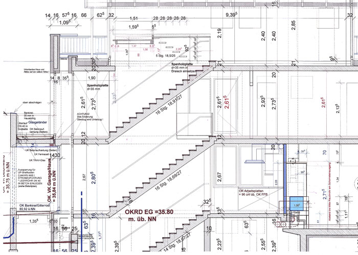
Neubau Hamburg-Blankenese, Schenefelder Landstraße
© 2018 BCI GmbH
    
 


- Neubau eines 360 m² - Einfamilienhauses in Hamburg-Blankenese
Planung, Bauleitung, Projektmanagement



 
Projekte