|
Einfamilienhaus - Neubau Projekt: Othmarschen, Parkstraße | zurück | Bautagebuch der Kinder |
||
![]() |
![]() |
![]() |
![]() |
![]() |
![]() |
![]() |
![]() |
![]() |
![]() |
![]() |
![]() |
N e u b a u
eines Einfamilienhauses in Hamburg-Othmarschen Planung, Bauleitung, Projektmanagement
|
|||
![]() |
![]() |
||
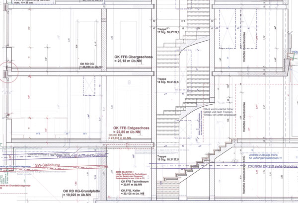
Schnitt |
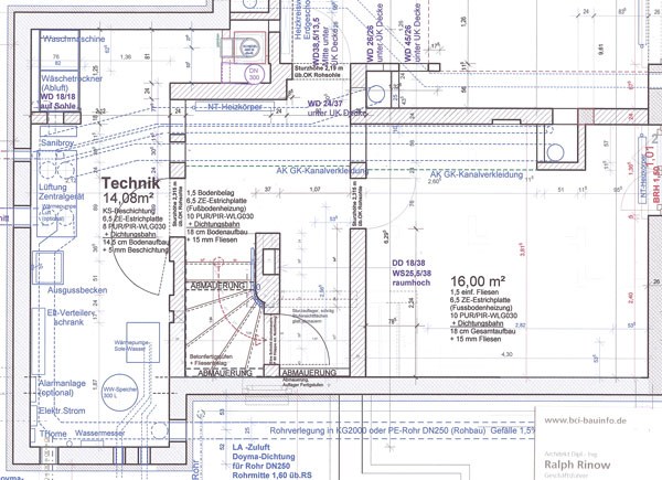
Grundriss | ||